



















Realisaties
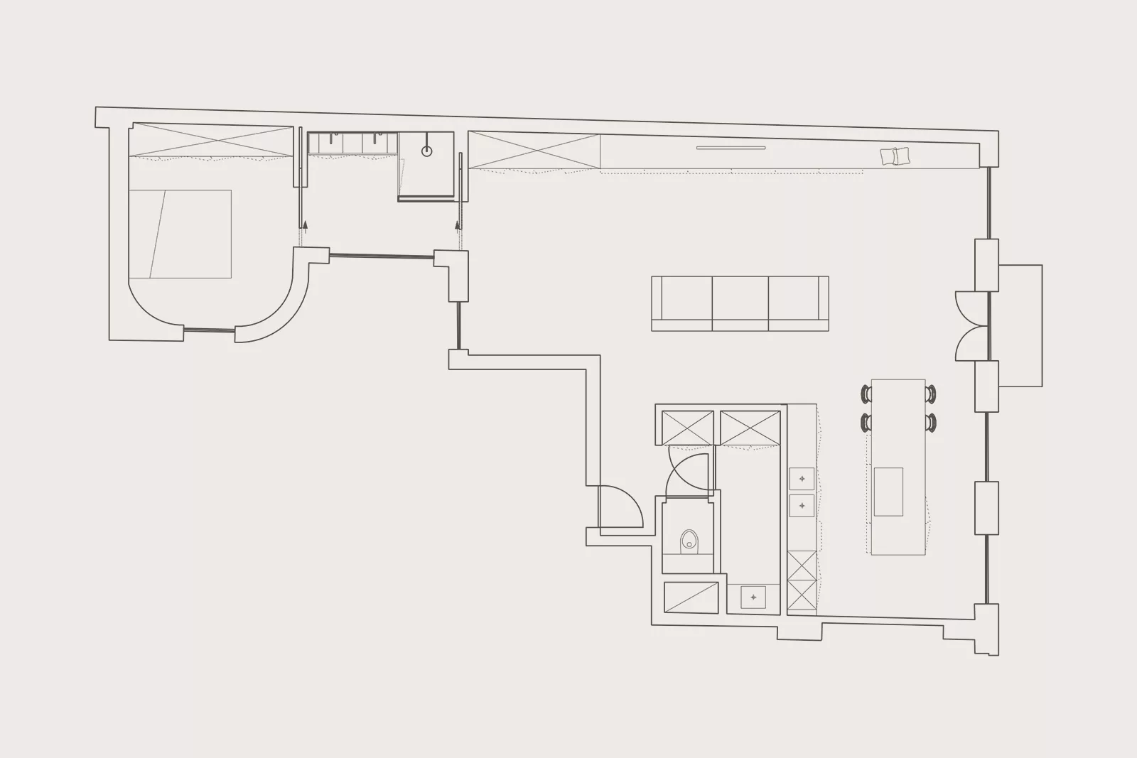
De bouwheer vertrouwde ons het volledige traject toe: van het interieurontwerp van keuken, leefruimte en badkamer tot de coördinatie van de werken. Het werd een intensieve samenwerking, mede dankzij hun sterk gevoel voor esthetiek en een helder beeld van het gewenste eindresultaat: een loft met industriële uitstraling en een minimalistisch interieur.
Het gastentoilet, samen met de ruimte voor technische en nutsvoorzieningen, werd gebundeld in één compacte box die de inkom visueel afscheidt van de centrale open keuken.
De volledige loft werd bewust open gehouden. Enkel ter hoogte van de badkamer en slaapkamer zorgen grote schuifdeuren voor voldoende privacy wanneer gewenst.















De technieken werden niet verborgen, maar net in de verf gezet. Zichtbare kabelgoten en ventilatiebuizen dragen bij aan de industriële look en vormen een bewust onderdeel van het ontwerp.
Tot slot werd de loft door de bouwheer zelf met veel smaak aangekleed, met kleurrijke accenten en enkele goed gekozen eyecatchers die het geheel een persoonlijke toets geven.
Korte Heuvelstraat 14
2920 Kalmthout, België
+32 (0)36 64 85 48
Mail ons