
















Realisaties
Dit project werd uitgevoerd in opdracht van architectenbureau Erfgoed en Visie. Zij zijn gespecialiseerd in restauratie -en erfgoedprojecten. (https://www.erfgoed-en-visie.be)
De meer dan 100 jaar oude hoeve, met schuur en varkensstal, werd volledig gerestaureerd. Bij deze ingreep lag de nadruk op het behouden van het historisch karakter, het opnieuw tot leven brengen van de volledige hoevesite met haar bijgebouwen én het integreren van moderne technieken en ecologisch-verantwoorde ingrepen.
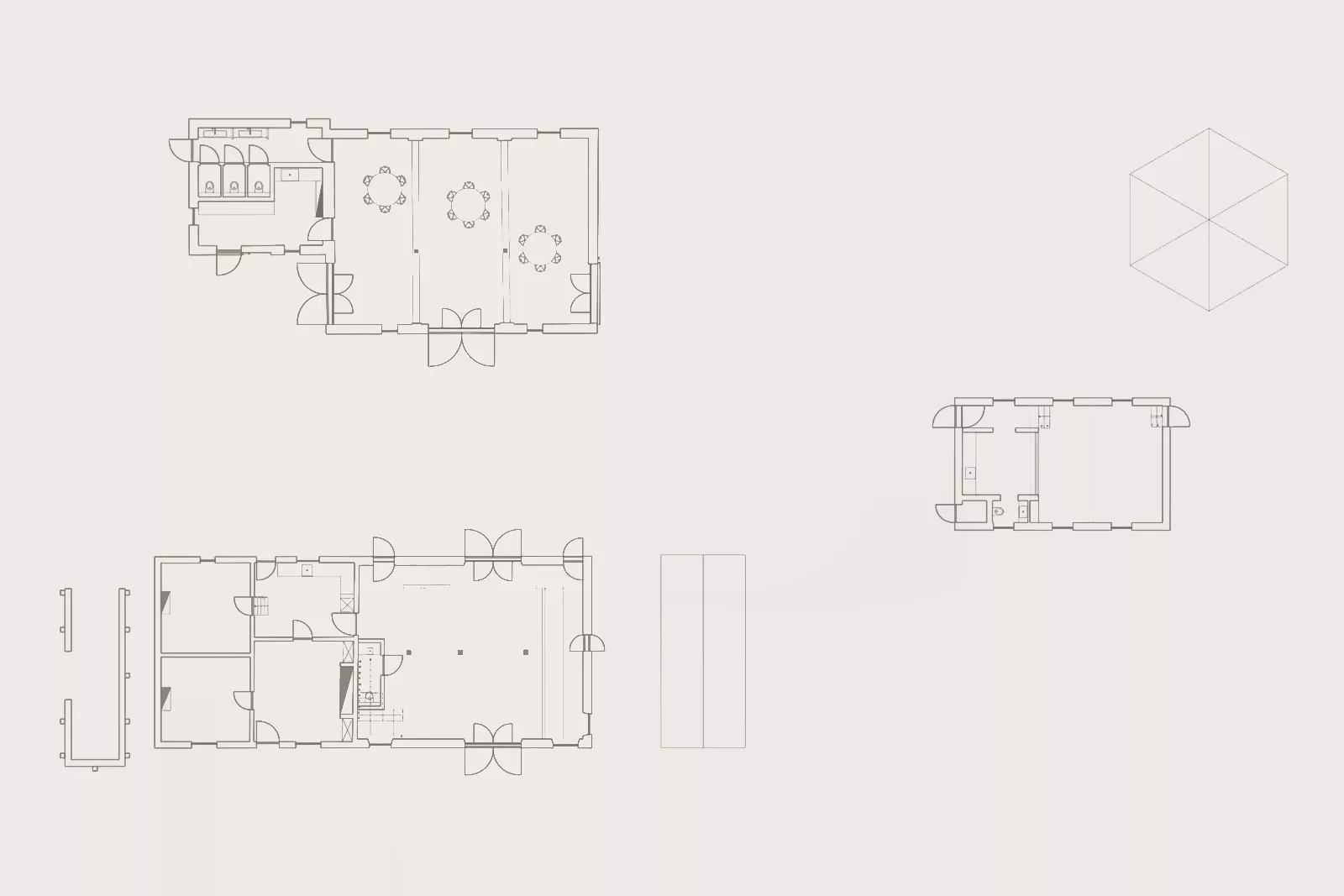
Het voormalige woonhuis doet vandaag dienst als modulaire vergaderruimte. De indeling op het gelijkvloers bleef waar mogelijk behouden. Aan de westzijde bevinden zich de oorspronkelijke woonvertrekken, waar het historische karakter centraal staat. Aan de oostzijde ligt de vroegere koeienstal, waarin de oude voederbakken een hedendaagse invulling als zitbank kregen. Op de bovenverdieping zijn twee open ruimtes gecreëerd, die vrij en flexibel ingevuld kunnen worden.












De schuur vormt een polyvalente ruimte. In de voormalige paardenstallen bevinden zich nu een industriële keuken en sanitair. De afwerking in leem werkt harmonieus samen met de bestaande houten balkenconstructie en versterkt de authentieke uitstraling.
De vroegere varkensstal kreeg een nieuwe functie als privé schilderatelier.
Niet alleen het behoud van de ziel en authenticiteit van de gebouwen stond centraal, ook de landelijke omgeving kreeg aandacht. De oorspronkelijke mestvaalt en moutput werden gerestaureerd en opnieuw opgebouwd. Een hooiopper, gerealiseerd volgens traditionele technieken, vervolledigt het beeld van de erfgoedsite.
De grootste uitdaging was het integreren van hedendaagse technieken zonder afbreuk te doen aan het originele karakter. De gebouwen werden volledig geïsoleerd: vloer, dak en muren kregen een upgrade. Voor de muren werd gekozen voor ecologische hennepisolatie aan de binnenzijde. De verwarming van het geheel gebeurt via een warmtepomp.
De site kreeg de naam Stroyland, een hedendaagse locatie voor meetings en events, verankerd in het verleden maar met het oog op de toekomst.
Website: https://stroyland.be
Korte Heuvelstraat 14
2920 Kalmthout, België
+32 (0)36 64 85 48
Mail ons