









Realisaties
In deze nieuwbouwwoning staat rust centraal, met een interieur dat warmte uitstraalt en naadloos aansluit bij de architectuur. Het ontwerp van het interieur en de volledige opvolging gebeurden door Hillen+, in nauwe samenwerking met Studio Noord.
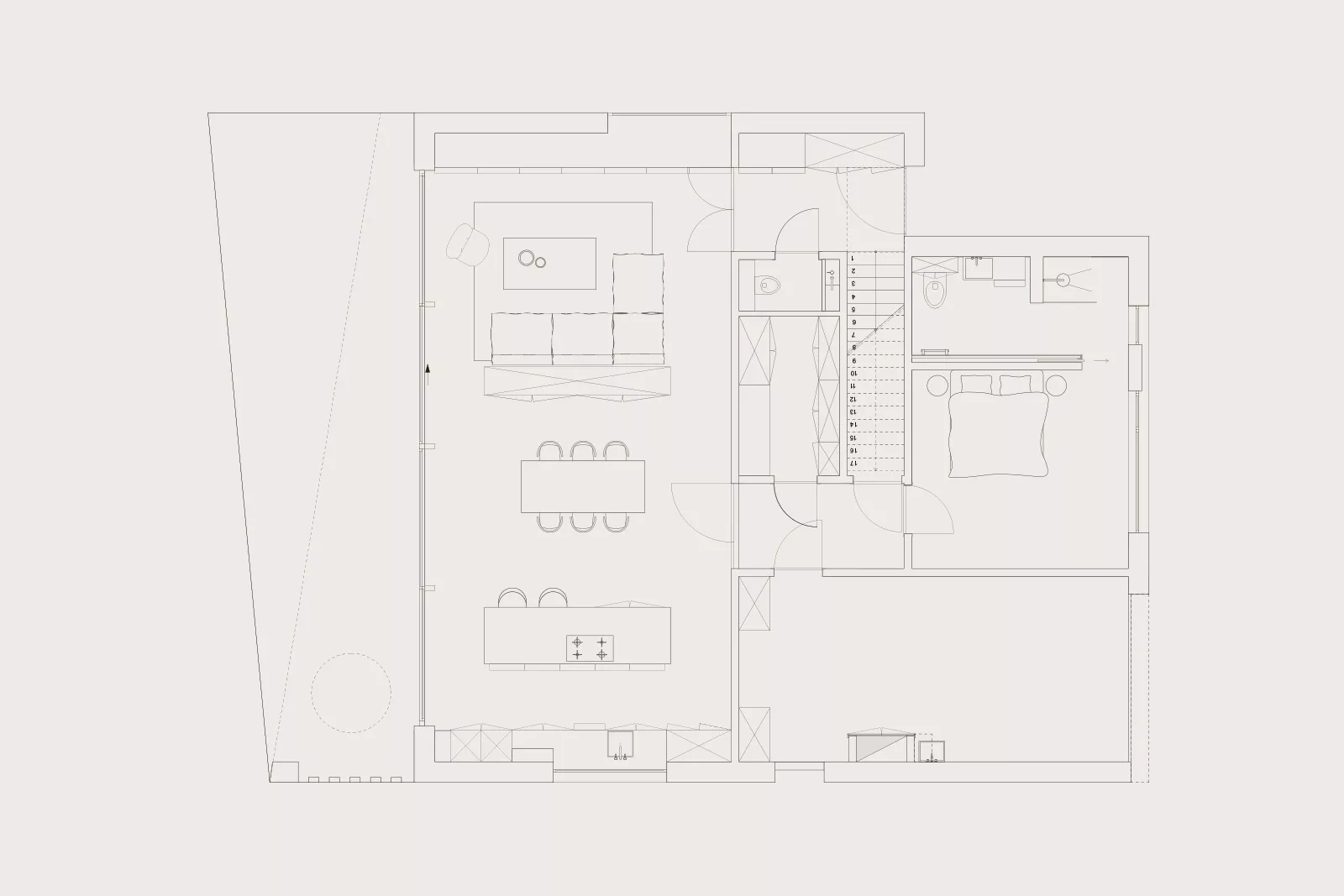
Van bij de inkom ervaar je hoe het interieur vloeiend doorloopt. Een zitbank leidt je van de inkomhal naar de intieme tv-hoek, die deels wordt afgeschermd van de eetkamer en keuken door een maatwerkwand. Deze wand is halfopen opgevat, waardoor er toch visuele connectie blijft tussen de ruimtes. Die verbinding wordt versterkt door het consequent doorlopende tegelvloer en het gebruik van dezelfde houtaccenten in verschillende zones.






De leefkeuken is het kloppende hart van de woning. Het eiland fungeert als blikvanger uit travertijn. Een knipoog naar de afgeronde bocht in de voorgevel komt terug in de vormgeving van het eiland.
Doorheen de woning komen overal dezelfde subtiele details terug: ingewerkte plinten in de muren, alsook ingewerkte houten plinten op de verdieping die vloeiend overgaan in het parket, en wanden afgewerkt met een warme borsteltechniek in verticale beweging.
Ook zijn de technieken een doordachte keuze, zoals de ventilatie, deze is discreet weggewerkt via het Prado-systeem, wat bijdraagt aan de cleane look zonder zichtbare roosters.
Korte Heuvelstraat 14
2920 Kalmthout, België
+32 (0)36 64 85 48
Mail ons